9667 Villa Rica HwyVilla Rica, GA 30180




Mortgage Calculator
Monthly Payment (Est.)
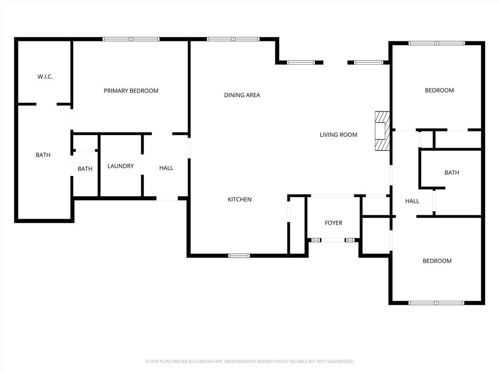
$1,711Beautiful new construction ranch located in South Paulding County, offering the perfect blend of modern finishes and functional design! Situated on a generous .74-acre lot with no HOA and no subdivision restrictions. This thoughtfully designed 3 bedroom, 2 bath split bedroom floor plan features an open concept layout with a welcoming foyer entry and a stunning vaulted great room highlighted by a rock fireplace. Natural light fills the home, enhanced by quality lighting throughout and smooth ceilings for a clean, modern feel. The kitchen is both stylish and practical, offering a great amount of cabinetry, granite countertops, tile backsplash, SS Appliances, pantry, and island with bar overhang perfect for everyday living and entertaining. The dining area flows seamlessly off the kitchen while maintaining an open, connected feel. The spacious vaulted owner's suite serves as a private retreat and includes a beautifully appointed bath with tile floors, double vanity, lighted mirrors, oversized tiled shower with glass door and bench seat, and a private toilet closet, plus a large walk-in closet! Luxury continues throughout the home with LVP hardwood flooring thru-out, upgraded trim package, and recessed three-panel doors. Secondary bedrooms are well-sized and thoughtfully positioned, with a full hall bath featuring granite countertops and a lighted mirror. Enjoy outdoor living from both the covered front and back porches overlooking your private lot. Additional features include Hardi-plank siding, Rock Water Table, a two-car attached garage and a walk-in laundry room with ample space for storage and functionality. If you're looking for quality new construction with modern finishes, privacy, and no HOA this one checks all the boxes!!
| 7 hours ago | Listing first seen on site | |
| 7 hours ago | Listing updated with changes from the MLS® |
Listings identified with the FMLS IDX logo come from FMLS and are held by brokerage firms other than the owner of this website and the listing brokerage is identified in any listing details. Information is deemed reliable but is not guaranteed. If you believe any FMLS listing contains material that infringes your copyrighted work, please click here to review our DMCA policy and learn how to submit a takedown request.
© 2017-2026 First Multiple Listing Service, Inc.
